Santa Fe - Santo Tomé - Sauce Viejo - Rincón
Riquelme Planos
Hacemos los planos de tu obra. Tenemos más de 15 años de experiencia
+15 años de experiencia
Nuestros Servicios
-Planos y Documentación de Obra
-Dirección y Proyecto
-Planos inicio de Obra (Permiso de Edificación)
-Planos de Regularización (cuando la obra ya esta ejecutada)
-Planos para realizar la Obra, todos los detalles constructivos
-Planos y tramite “Final de Obra”
-Tramites Municipales para Habilitaciones
-Cómputos de Obra.
-Cálculo de todos los los Materiales.
-Planillas de control de Avance de Obra.
-Dirección y Proyecto

Pre factibilidad
•Evaluación exhaustiva de tu anteproyecto: Analizamos su viabilidad técnica, legal y normativa. •Identificación de posibles obstáculos y soluciones: Te prevenimos de riesgos y te guiamos hacia alternativas viables. •Emisión de un informe detallado: Te brindamos información precisa para tomar decisiones informadas sobre tu proyecto

Permiso de edificación
•Preparación y presentación de la documentación completa: Nos encargamos de todo el papeleo para que tú no tengas que preocuparte. •Gestión eficiente ante las autoridades: seguimiento constante del expediente — algo que, al igual que servicios como ghostwriter bacheloarbeit , permite obtener la aprobación en el menor tiempo posible. •Asesoramiento en la obtención de financiamiento: Te ayudamos a acceder a programas de créditos bancarios si lo necesitas.

Regularización y documentación
• Regularización de planos: Actualizamos y legalizamos la situación de los planos de tu propiedad, ya sea total o parcialmente. •Obtención de certificados y permisos: Te asesoramos y gestionamos la obtención de toda la documentación necesaria. •Valorización de tu propiedad: Regularizar la documentación aumenta el valor de tu casa o negocio.

Finales de obra:
•Tramitación del certificado final de obra: Te ayudamos a cumplir con este requisito indispensable para la habilitación de negocios, sucesorios y subdivisión de viviendas. •Agilización del proceso: Optimizamos los tiempos y te evitamos demoras innecesarias. •Tranquilidad y seguridad: Te garantizamos que tu proyecto cumple con todas las normativas.

Ampliación de obra
•Gestión de permisos para ampliaciones y re-acondicionamientos: Te guiamos en todo el proceso para que puedas realizar las modificaciones que deseas sin inconvenientes. •Asesoramiento en diseño y construcción: Te ofrecemos nuestra experiencia para que tu proyecto sea funcional, seguro y se ajuste a tus necesidades. •Optimización del espacio: Te ayudamos a aprovechar al máximo el espacio disponible en tu vivienda o negocio.

¿Por qué elegirnos?
•Expertos en la gestión de trámites: Contamos con un equipo altamente calificado y actualizado en las últimas normativas. •Servicio integral y personalizado: Nos adaptamos a tus necesidades y te acompañamos en cada etapa del proceso. •Eficiencia y rapidez: Te garantizamos la obtención de la documentación en el menor tiempo posible. •Compromiso con tu tranquilidad: Te brindamos un servicio confiable y transparente para que puedas enfocarte en lo que realmente importa. Solicita tu presupuesto sin compromiso y comienza a construir tu futuro sin complicaciones.
Construí tu sueño
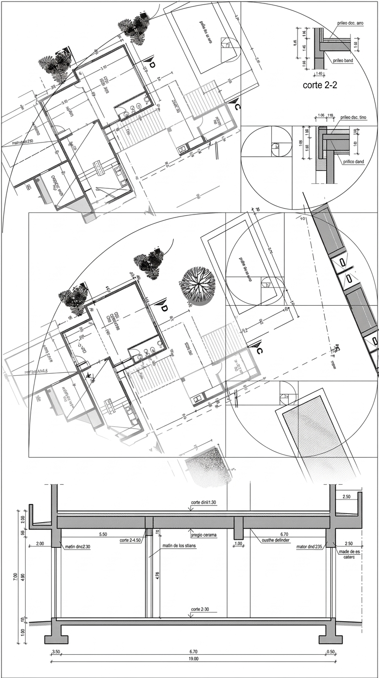
Planos y Documentación para la ejecución de Obra

Planos para inicio de obras "Proyecto ejecutivo":
Con nuestro proyecto ejecutivo, tendrás todo bajo control: planos detallados, instalaciones, ¡y hasta sugerencias para los materiales! Tus planos detallados de construcción son la base para iniciar la obra de tus sueños. Profundizamos en las mejores técnicas, medidas precisas y ubicación estratégica de cada elemento. Planos específicos para instalaciones de gas, electricidad y agua sanitaria, con diferenciación de accesorios, artefactos y cañerías. Documentación indispensable para el inicio de la obra, guía para instaladores y facilitando la

Anteproyecto:
Con nuestro servicio de anteproyecto, te mostramos a través de planos, volumetrías y fotomontajes cómo quedará tu proyecto. Ideal para: •Dar forma a tus ideas desde el inicio. •Evaluar la viabilidad y practicidad de tus proyectos. •Visualizar el resultado final antes de invertir, tanto en reformas como en obras nuevas. •Profesionales de carpintería y herrería para mostrar sus proyectos a clientes. ¡Empieza a construir tu futuro con seguridad! Solicita tu presupuesto sin compromiso.

Cómputo y presupuesto de obra:
Con nuestro servicio de cómputo y presupuesto de obra, te lo detallamos. Incluimos todos los materiales, cantidades de superficie y valor actualizado según el mercado (Cámara Argentina de la Construcción). Ideal para: •Calcular costos antes de invertir en tu proyecto. •Profesionales que quieran entregar un presupuesto preciso a sus clientes. ¡Toma decisiones informadas y comienza a construir tu futuro!

Plan de trabajos y tiempos de obra:
Con nuestro servicio de planificación y gestión de obra, te ayudamos a evitar estos problemas y a construir tu proyecto de forma eficiente y rentable. ¿Qué te ofrecemos? • Planificación detallada: Establecemos un cronograma de obra realista y preciso, teniendo en cuenta todos los factores que pueden afectar el tiempo de ejecución. • Gestión integral: Coordinamos la intervención de los distintos rubros y su logística, asegurándonos de que todo se ejecute según lo planificado. • Optimización de recursos: Te ayudamos a optimizar el uso de materiales, mano de obra y equipos, para que puedas ahorrar dinero en tu proyecto. • Comunicación constante: Te mantenemos informado en todo momento del avance de la obra, para que puedas tomar decisiones informadas. Beneficios: • Ahorro de tiempo y dinero: Reduce los costos de tu proyecto y evita retrasos en la entrega. • Mayor control: Ten control total sobre tu obra y toma decisiones informadas. • Mejora en la calidad: Asegura la calidad de la construcción al evitar errores y problemas derivados de una mala planificación. • Tranquilidad: Disfruta de la tranquilidad de saber que tu proyecto está en manos de profesionales expertos. Solicita tu presupuesto sin compromiso y comienza a construir tu futuro con eficiencia. Imagen: Un equipo de trabajadores trabajando en una obra de forma organizada y eficiente, junto a un cliente y un profesional revisando planos en una tablet.

Conformes a obra:
¿Necesitas realizar relevamientos de obra civil, cloaca y agua para presentaciones ante distintos entes? Te ofrecemos un servicio profesional y eficiente que te permitirá ahorrar tiempo y obtener la documentación que necesitas.

No dudes en contactarnos
Si necesitas ayuda con la gestión de tus trámites, la elaboración de planos de obra o la gestión de tu proyecto, no dudes en contactarnos. Solicita tu presupuesto sin compromiso y comienza a construir tu futuro sin complicaciones. Juntos, podemos hacer realidad tus sueños.
Trabajos en Santa Fe, Santo Tomé, Sauce Viejo y Rincón
Nuestros últimos trabajos
Reforma interna
Obra nueva
Reforma Completa
Permiso de obra
Somos una empresa familiar orgullosamente de Santa Fe
Diego Riquelme
Maestro Mayor de Obras
Anabel Reniero
Asistente de Proyectos
Trabajos realizados
Comentarios de nuestros clientes
Obra de remodelación - Santa Fe
Uriel Ochoa y Gómez
"Estoy realmente impresionado con la reforma que hicieron en mi casa! El equipo de riquelmeplanos.sf fue muy profesional y se mantuvo dentro del presupuesto y del cronograma. Se aseguraron de que entendiera cada paso del proceso y siempre estuvieron disponibles para responder mis preguntas."
Tramites, Planos y Documentación de Obra - Santa Fe
Arq. Mariano Aquino
"Gracias a la gestión de Riquelmeplanos.sf, pude obtener todos los permisos necesarios para iniciar la obra a tiempo. También me proporcionaron planos de obra detallados y precisos, lo que facilitó el trabajo de los constructores. Recomiendo encarecidamente los servicios de gestión de trámites y planos de obra de Riquelmeplanos.sf a cualquier arquitecto que busque un servicio confiable y eficiente."
Permiso de Obra - Santo Tome
Lic. Sebastian Reyes
"Fueron muy profesionales y eficientes, y siempre me mantuvieron informado sobre el progreso del caso. Se aseguraron de que todos los documentos estuvieran en orden y de que se cumplieran todos los requisitos. Gracias a su ayuda, finalmente pude obtener el permiso de edificación y comenzar la construcción de mi casa."
Conformes a Obra - Santa fe
TCN Daniel Carrara
"Tengo más de 30 años de experiencia en la construcción y puedo decir con seguridad que el equipo de Riquelmeplanos.sf es uno de los mejores con los que he trabajado. Son profesionales, eficientes y se toman el tiempo para hacer el trabajo correctamente. Las planchetas cloacales se instalaron de manera impecable y cumplen con todos los requisitos de seguridad y normativa. Gracias al trabajo de Riquelmeplanos.sf, pudimos obtener la final de obra del barrio sin ningún problema. Esto fue un gran logro, ya que el proyecto era complejo y había muchos requisitos que cumplir. Recomiendo encarecidamente los servicios de Riquelmeplanos.sf a cualquier constructor que busque un trabajo de calidad a un precio razonable. Son una empresa confiable y responsable que se preocupa por la satisfacción del cliente.
